| Dies ist nur ein Beispiel. Aus diesen Informationen können keine Rechte abgeleitet werden. Für die richtigen Kosten fühlen Sie bitte das Kontaktformular aus. | |
| Notarkosten und Grunderwerbsteuer Zum aktuellen Verkaufspreis/ einmalig |
€ 14.252 |
| Grundsteuer Geschätzt |
Geschätzt zwischen € 371 und € 1.298 |
| lokale Steuern Geschätzt |
Geschätzt zwischen € 370,88 und € 927,20 |
| Versicherung | Ab 165 euro pro Jahr |
| Energie, hängt von Ihrem Verbrauch ab. Sie haben ein Abonnement bei EDF für 3KW von ca. 70 € pro Jahr. |
|
| Wasser, hängt von Ihrem Verbrauch ab und kann je nach Gemeinde variieren (fragen Sie bei der Gemeinde). | |
| Kanalisation, hängt von Ihrem Wasserverbrauch ab und kann je nach Gemeinde variieren (fragen Sie bei der Gemeinde). Wenn keine Kanalisation verfügbar ist, informieren Sie sich ob die aktuelle Klärgrube dem Standard entspricht. Wenn nicht, muss sie ersetzt werden. Für die Platzierung eine neue Klärgrube, rechne mal zwischen 7.000 und 11.000 Euro. Weitere Informationen über die Klärgrube finden Sie hier (auf Französisch). |
|
| Heizung, hängt von Ihrem Verbrauch und der Art der Heizung (Holz, Öl, Elektro, etc.) ab. | |
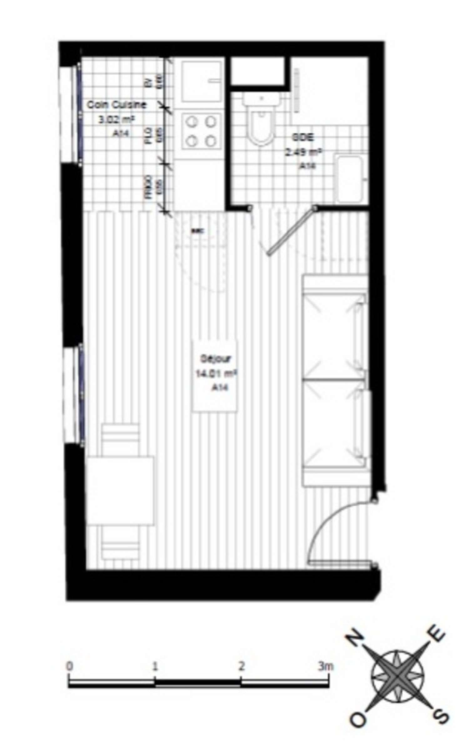
Ich möchte mehr Informationen zu dieser Immobilie haben Wohnung/ Apartment Clichy, Hauts-de-Seine, Referenz: 340931320373
andere Immobilien in der Gegend
Wohnung/ Apartment Paris 11e Arrondissement
Paris (Seine)
auf 3 Km
€ 197.600
Wohnung/ Apartment Paris 11e Arrondissement

